811 Meade Street
Details
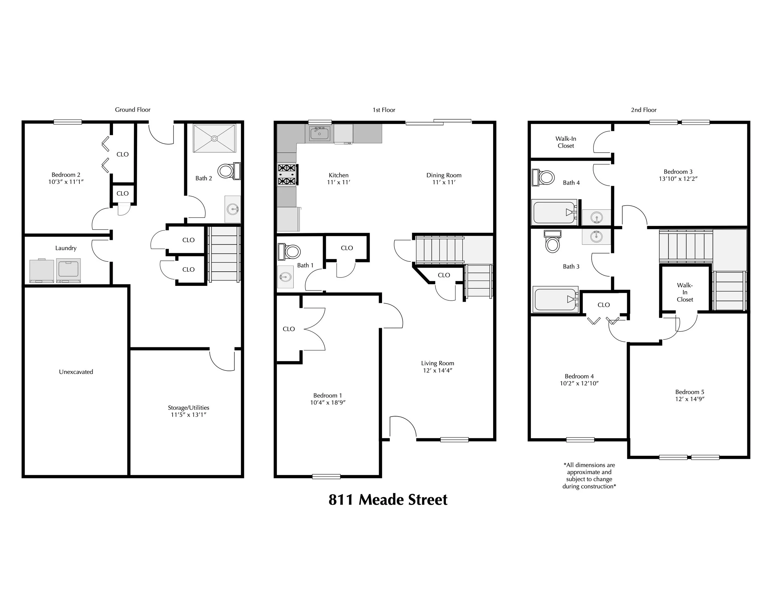
5 bedrooms, 3.5 bathrooms
New construction completed in 2008, full renovation in 2023 includes:
Fully equipped kitchen with OTR microwave and dishwasher
Central air conditioning
Keypad locks on exterior and all bedrooms
Large bedrooms with closets
Large, private rear deck
2-car off-street parking
Washer and dryer
Fifth Street Properties has been Lehigh’s preferred off-campus student housing provider for more than a decade. Experience the difference living in a house that has been stylishly renovated with students in mind, and with important safety features and upgraded systems and appliances.
Our knowledgeable, on-site, maintenance and management make the choice easy.
422 Thomas Street, Bethlehem, PA 18015 | (610) 419-9219
